Filtrar Arrow Bottom
Grid
  • usos

  • localizacao

  • status-projetos

  • acervo

Banner
Banner
Banner
Banner
Banner
Banner
Banner
Banner
Banner
Banner
Banner
Banner
Banner
Banner
Arrow Left Voltar
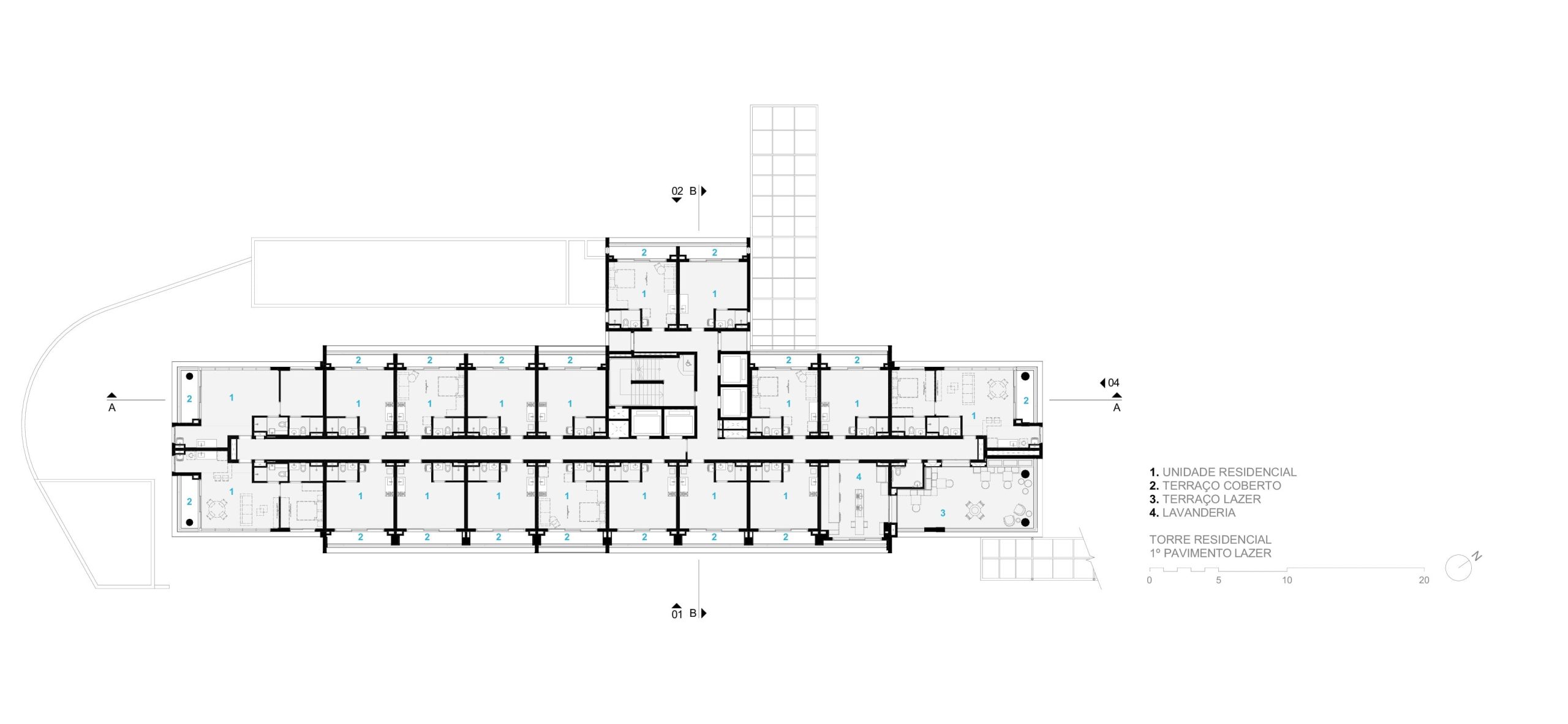
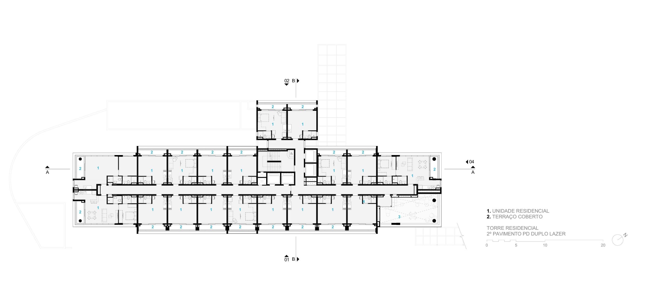
Uso misto

Tarraf Square

Estrada Alberto Barison 10, São José do Rio Preto, São Paulo, Brasil

 

Situado em uma área de intensa transformação urbana, o Tarraf Square marca a consolidação de uma nova centralidade em São José do Rio Preto. O projeto de uso misto desenvolve-se em torno de uma grande praça aberta, conectada ao futuro boulevard do Shopping Iguatemi. Esse espaço arborizado articula a torre comercial e a residencial, criando sinergia com o movimento de pedestres do shopping contíguo. 

Os terraços dos edifícios introduzem movimento nas fachadas, trazendo jardins para próximos das unidades e criando espaços de transição e descompressão, especialmente nas áreas comuns da torre comercial.

Em 72 horas, durante o fim de semana de lançamento, 96% das unidades do empreendimento foram vendidas, rendendo à incorporadora o reconhecimento de Prêmio Profissional – Comercialização, durante a edição do 30° Master Imobiliário.

Imagem
Imagem
Imagem
Imagem
Imagem
Imagem
Imagem
Imagem
Imagem
Imagem
Imagem
Imagem
Imagem
Imagem
Imagem
Imagem
Imagem
Imagem
Imagem
Imagem
Imagem
Imagem
Imagem
Imagem
Imagem
Imagem
Imagem
Imagem
Imagem
Imagem
Imagem
Imagem
Imagem
Imagem
Imagem
Imagem

Detalhes do projeto

Ficha técnica

Cliente

Tarraf

Ano do projeto

2022

Área do terreno

6.511,97m²

Área construída

56.278,77m²

Localização

Estrada Alberto Barison 10, São José do Rio Preto, SP

Time do projeto

Autor

Jorge Königsberger

Autor

Gianfranco Vannucchi

Autor

Daniel Toledo

Autor

Alexandre Daud

Autor

Claudio Inserra

Responsável técnica

Liliana Luna de Sá

Equipe

Ana Peral

Equipe

Daniel Ferrer

Equipe

Karina Kohutek

Colaborador

Luiza Parreira

Colaborador

Adriana Boschini

Colaborador

Taís Galvão Bueno

Colaborador

Felipe Lima

Colaborador

Henrique Reis

Colaborador

Hélio Ávila

Imagens

Königsberger Vannucchi

Prêmios

30° Prêmio Master Imobiliário | 2024